ソリオホール


ご利用案内、施設料金表、施設資料や利用に関する様式等をこちらにご用意しております。
ダウンロードしてご利用ください。


※画像・ロゴマークをクリックいただくか、または右クリックで対象をファイルに保存を選択いただき、ご覧ください。PDFファイルを読むには、ご自分のパソコンにAdobe Readerをインストールする必要があります。

ホール利用案内


ソリオホール利用案内(PDFファイル)


ホール・会議室 料金表


ソリオホール料金表(基本)


ソリオホール料金表(5割増・市外の方又は営利・営業・入場料あり)


ソリオホール料金表(10割増・市外の方で、営利・営業・入場料あり)


ソリオホール器具料金表(PDFファイル)


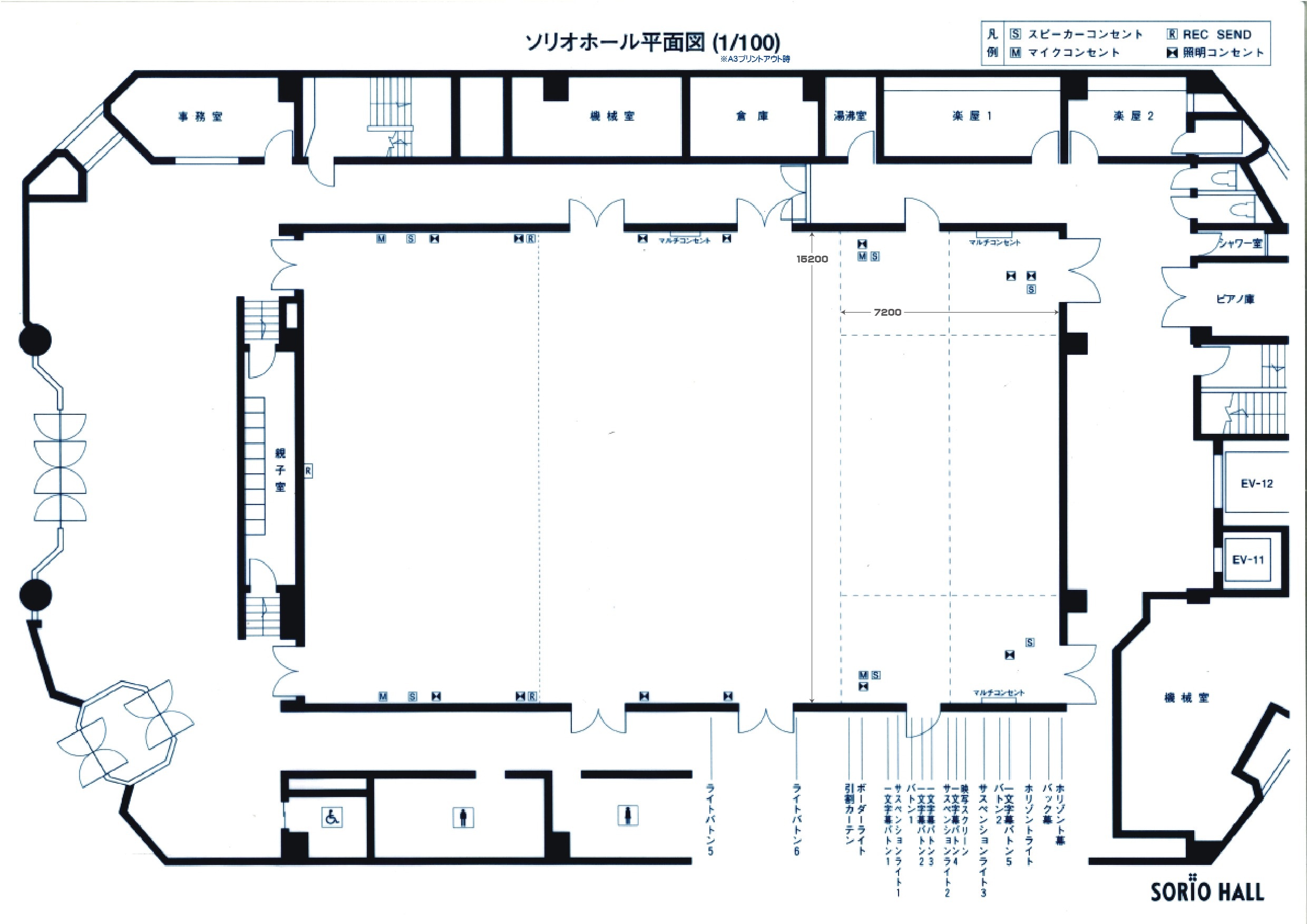
ホール機材リスト・舞台図等


舞台平面図(1/50)


舞台断面図


ソリオホール座席図PDF

ソリオホール座席図(PDFファイル)


ソリオホール フロア図(座席無し)


ソリオホール フロア図(座席有り)


音響・映像設備一覧


照明設備一覧


舞台設備一覧


ソリオカルチャー定期利用案内


ソリオカルチャー定期利用のご案内(2026年度)


ソリオカルチャー定期利用料金表(PDFファイル)


ソリオカルチャー会議室付帯設備料金表(PDFファイル)

ソリオカルチャー教室チラシ(PDFファイル)


ソリオホール周辺マップ


ソリオホール周辺マップ(jpgファイル)